Aby poprawnie narysować schody, kluczowe jest zrozumienie zasad rysunku technicznego oraz zastosowanie odpowiednich technik. W tym artykule omówimy, jak wykonać rysunek schodów, uwzględniając zarówno aspekty estetyczne, jak i funkcjonalne. Zastosowanie zasady rzutu poziomego pozwala na dokładne przedstawienie projektu, a umiejętne wymiarowanie zapewnia zgodność z obowiązującymi przepisami budowlanymi.
Skupimy się na najważniejszych krokach, takich jak zaznaczanie kierunku wchodzenia, rysowanie krawędzi stopni oraz oznaczanie spoczników. Dzięki tym informacjom, nawet osoby bez doświadczenia w rysunku technicznym będą mogły stworzyć czytelny i funkcjonalny projekt schodów.
Kluczowe wnioski:
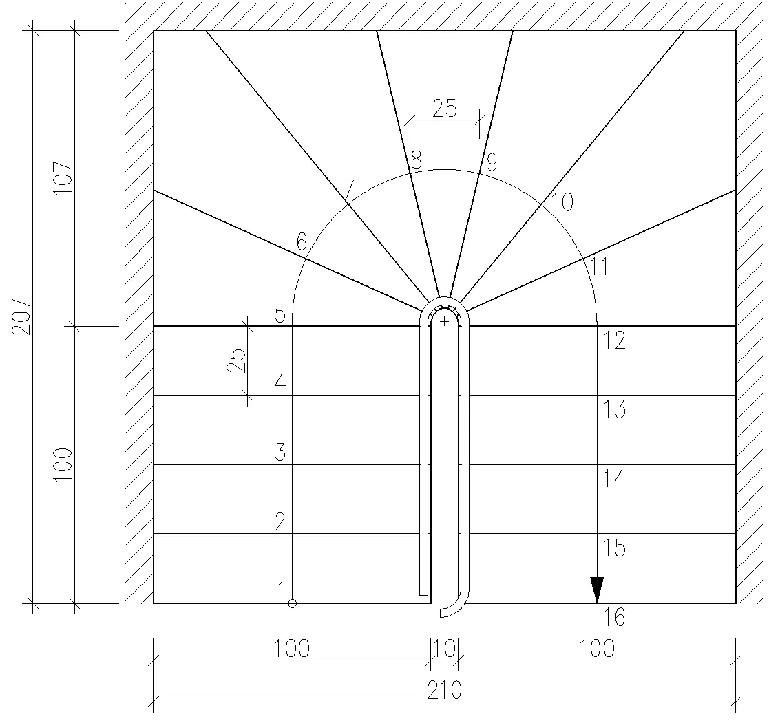
- Rysunek schodów należy rozpocząć od rzutu poziomego, zaznaczając kierunek wchodzenia oraz krawędzie stopni.
- Wymiary biegu schodów powinny być zgodne z przepisami, np. minimalna szerokość wynosi 80 cm.
- Spoczniki powinny mieć głębokość co najmniej równą szerokości biegu, a w przypadku zmiany kierunku – nie mniejszą niż 1,5-krotność szerokości biegu.
- Wartości wysokości i głębokości stopni powinny być dokładnie wymiarowane, zgodnie z regułą Blondela.
- Przekrój boczny schodów powinien przedstawiać wysokość stopni oraz kąt nachylenia biegu.
- Dokładność rysunku można poprawić, korzystając z narzędzi wspomagających, takich jak szablony 1:1.
Jak skutecznie narysować schody: proste techniki rysunkowe
Rysowanie schodów wymaga zastosowania prosty technik rysunkowych, które zapewnią czytelność i dokładność projektu. Kluczowym elementem jest zastosowanie zasady rzutu poziomego, co pozwala na przedstawienie schodów w widoku z góry. Należy oznaczyć kierunek wchodzenia strzałką, co ułatwia zrozumienie układu schodów. Warto również pamiętać o zachowaniu stałej głębokości stopnia, co jest istotne dla estetyki i funkcjonalności rysunku.
Podczas rysowania schodów jednobiegowych, linie powinny być proste, natomiast dla schodów zabiegowych zaleca się stosowanie linii zbiegających się w punkcie zakrętu. Ważne jest także zaznaczenie spoczników jako pustych prostokątów, co jest szczególnie istotne w przypadku schodów dwubiegowych. Rysunek powinien również zawierać wymiary całkowite biegu, takie jak długość i szerokość, zgodnie z przepisami budowlanymi, co pozwoli na stworzenie projektu zgodnego z wymaganiami.
Zrozumienie podstawowych proporcji schodów dla dokładnych rysunków
Aby uzyskać dokładny rysunek schodów, kluczowe jest zrozumienie podstawowych proporcji i wymiarów. Wymiary te powinny być zgodne z normami budowlanymi, co zapewnia bezpieczeństwo i funkcjonalność schodów. Na przykład, minimalna szerokość schodów w budynkach mieszkalnych wynosi 80 cm, a głębokość spoczników powinna być co najmniej równa szerokości biegu. Zgodnie z regułą Blondela, suma podwójnej wysokości stopnia i jego głębokości powinna mieścić się w przedziale 60–65 cm.Aby uzyskać dokładny rysunek schodów, kluczowe jest zrozumienie podstawowych proporcji i wymiarów. Wymiary te powinny być zgodne z normami budowlanymi, co zapewnia bezpieczeństwo i funkcjonalność schodów. Na przykład, minimalna szerokość schodów w budynkach mieszkalnych wynosi 80 cm, a głębokość spoczników powinna być co najmniej równa szerokości biegu. Zgodnie z regułą Blondela, suma podwójnej wysokości stopnia i jego głębokości powinna mieścić się w przedziale 60–65 cm.- Wysokość stopni powinna wynosić od 15 do 20 cm, co jest komfortowe dla użytkowników.
- Głębokość stopni powinna wynosić od 28 do 30 cm, aby zapewnić stabilność podczas wchodzenia.
- Spoczniki w schodach dwubiegowych powinny mieć głębokość nie mniejszą niż 1,5-krotność szerokości biegu.
Wybór odpowiednich narzędzi do rysowania schodów
Aby jak narysować schody w sposób precyzyjny, konieczne jest posiadanie odpowiednich narzędzi. Wśród tradycyjnych narzędzi rysunkowych znajdują się ołówek, linijka oraz gumka. Ołówek pozwala na dokładne rysowanie linii, a gumka umożliwia poprawki w razie potrzeby. Linijka jest niezbędna do zachowania prostych krawędzi i odpowiednich wymiarów, co jest kluczowe w rysunkach technicznych. Dobrze jest również mieć pod ręką papier milimetrowy, który ułatwia zachowanie proporcji.
W dzisiejszych czasach warto rozważyć także użycie programów komputerowych do rysowania schodów. Oprogramowanie takie jak AutoCAD lub SketchUp pozwala na tworzenie precyzyjnych rysunków w 2D i 3D. Dzięki tym narzędziom można łatwo wprowadzać zmiany, a także wizualizować projekt w różnych perspektywach. Programy te oferują również gotowe szablony i elementy, co znacząco przyspiesza proces rysowania schodów.
Różne typy schodów i ich techniki rysunkowe
Rysowanie schodów to nie tylko kwestia umiejętności, ale także zrozumienia różnorodności ich typów. Wśród najpopularniejszych typów schodów są schody proste oraz schody spiralne. Schody proste są najłatwiejsze do narysowania, ponieważ ich konstrukcja opiera się na prostych liniach. W tym przypadku wystarczy zaznaczyć bieg schodów jako równoległe linie, co ułatwia uzyskanie precyzyjnego rysunku. Ważne jest, aby podczas rysowania schodów prostych uwzględnić odpowiednie wymiary i proporcje, co zapewnia ich funkcjonalność.
Schody spiralne, z kolei, stanowią większe wyzwanie dla rysownika. Ich konstrukcja wymaga zastosowania linii krzywych, które zbiegają się w punkcie centralnym. Przy rysowaniu schodów spiralnych kluczowe jest, aby dobrze zrozumieć, jak zaplanować promień oraz kąt nachylenia. Użycie narzędzi takich jak krzywik lub programy CAD może znacznie ułatwić ten proces, umożliwiając precyzyjne odwzorowanie krzywizn. Warto również pamiętać, że schody spiralne zajmują mniej miejsca, co czyni je popularnym wyborem w małych przestrzeniach.
Jak narysować schody proste: krok po kroku
Aby jak narysować schody proste, warto postępować zgodnie z określonymi krokami, które zapewnią dokładność i czytelność rysunku. Proces ten obejmuje kilka istotnych etapów, które pomogą w stworzeniu precyzyjnego projektu. Poniżej przedstawiamy szczegółowy opis każdego z tych kroków, co pozwoli na łatwe i efektywne narysowanie schodów prostych.
- Przygotowanie materiałów: Zgromadź wszystkie niezbędne narzędzia, takie jak ołówek, linijka, gumka oraz papier milimetrowy. Upewnij się, że masz odpowiednie wymiary schodów, które chcesz narysować.
- Rysowanie linii poziomej: Zaczynając od dolnego stopnia, narysuj poziomą linię, która będzie reprezentować głębokość pierwszego stopnia. Użyj linijki, aby linie były proste i równe.
- Zaznaczenie wysokości stopni: Od linii poziomej, w górę, narysuj pionowe linie, które będą oznaczać wysokość każdego stopnia. Upewnij się, że wszystkie stopnie mają jednakową wysokość, co jest istotne dla bezpieczeństwa użytkowników.
- Rysowanie krawędzi stopni: Po narysowaniu wysokości, połącz poziome i pionowe linie, aby utworzyć krawędzie stopni. Zachowaj stałą głębokość na każdym stopniu, co zapewnia estetykę i funkcjonalność schodów.
- Oznaczenie spoczników i wymiarów: Na końcu narysuj spoczniki jako prostokąty, a także dodaj wymiary całkowite biegu schodów. Zaznacz kierunek wchodzenia strzałką, co ułatwi zrozumienie układu schodów.
Techniki rysowania schodów spiralnych: wyzwania i rozwiązania
Rysowanie schodów spiralnych wiąże się z wieloma wyzwaniami, które mogą sprawić trudności, zwłaszcza dla początkujących rysowników. Kluczowym problemem jest precyzyjne odwzorowanie krzywizn oraz zachowanie odpowiednich proporcji. W przeciwieństwie do schodów prostych, schody spiralne wymagają zastosowania linii promienistych, co może być skomplikowane bez odpowiednich narzędzi. Dodatkowo, ważne jest, aby zrozumieć, jak rozplanować przestrzeń, aby schody były funkcjonalne i estetyczne.
Aby pokonać te trudności, warto skorzystać z kilku technik. Po pierwsze, użycie krzywika lub specjalistycznego oprogramowania do rysowania, takiego jak AutoCAD, może znacznie ułatwić proces. Po drugie, warto zwrócić uwagę na wykorzystanie szablonów, które pomogą w odwzorowaniu odpowiednich kształtów. Dzięki tym rozwiązaniom można uzyskać dokładniejsze i bardziej profesjonalne rysunki schodów spiralnych.
Najczęstsze błędy przy rysowaniu schodów i jak ich unikać
Podczas rysowania schodów, wiele osób popełnia typowe błędy, które mogą prowadzić do nieprawidłowego projektu. Jednym z najczęstszych błędów jest niewłaściwe wymiarowanie. Zbyt mała szerokość schodów może skutkować niebezpieczeństwem dla użytkowników, a zbyt duża może prowadzić do marnotrawstwa przestrzeni. Ponadto, nieprawidłowe proporcje wysokości i głębokości stopni mogą powodować dyskomfort podczas wchodzenia i schodzenia. Ważne jest, aby stosować się do reguły Blondela, która określa optymalne wymiary dla schodów.
Innym powszechnym błędem jest niedostateczne zaznaczenie kierunku wchodzenia. Brak strzałki na rzucie poziomym może prowadzić do niejasności w projekcie, co może być problematyczne dla wykonawcy. Również, pomijanie oznaczeń spoczników może skutkować nieczytelnością rysunku. Aby uniknąć tych błędów, należy dokładnie planować każdy krok rysowania i upewnić się, że wszystkie elementy są wyraźnie zaznaczone oraz zgodne z obowiązującymi normami budowlanymi.
Błędy w proporcjach i kątach: jak je zidentyfikować
W rysunkach schodów często występują proporcjonalne błędy, które mogą mieć poważne konsekwencje. Niewłaściwe kąty nachylenia stopni mogą prowadzić do niebezpiecznych sytuacji, a zbyt duża różnica w wysokości stopni może powodować dyskomfort. Aby zidentyfikować te błędy, warto zwrócić uwagę na kilka kluczowych wskaźników, takich jak zmiany w wysokości czy głębokości stopni, które nie odpowiadają ustalonym normom.
- Sprawdź, czy wysokość wszystkich stopni jest równa; różnice mogą wskazywać na błąd w wymiarowaniu.
- Upewnij się, że głębokość stopni jest zgodna z zasadami budowlanymi; zbyt mała głębokość może prowadzić do potknięć.
- Obserwuj kąty nachylenia schodów; jeśli są zbyt strome, mogą być niebezpieczne dla użytkowników.
Zasady bezpieczeństwa i zgodności z przepisami budowlanymi
Podczas projektowania schodów, kluczowe jest przestrzeganie zasad bezpieczeństwa oraz przepisów budowlanych. Normy te określają minimalne wymagania dotyczące wymiarów schodów, ich konstrukcji oraz materiałów, które powinny być użyte. Na przykład, minimalna szerokość schodów w budynkach mieszkalnych wynosi 80 cm, co zapewnia wygodne poruszanie się. Również, wysokość stopni powinna być jednolita i mieścić się w przedziale 15-20 cm, aby zapewnić komfort użytkowania oraz bezpieczeństwo. Dodatkowo, zaleca się, aby głębokość stopni wynosiła co najmniej 28 cm, co minimalizuje ryzyko potknięcia.
| Wymiar | Minimalna wartość |
|---|---|
| Szerokość schodów | 80 cm |
| Wysokość stopnia | 15-20 cm |
| Głębokość stopnia | 28 cm |
| Głębokość spocznika | 1,5-krotność szerokości biegu |

Przykłady schodów w różnych stylach: inspiracje do rysunku
Istnieje wiele stylów schodów, które można wykorzystać w projektach architektonicznych. Schody nowoczesne charakteryzują się prostotą i minimalistycznym designem. Często wykorzystują materiały takie jak szkło i stal, co nadaje im lekkości i elegancji. W nowoczesnych schodach można spotkać również otwarte konstrukcje, które optycznie powiększają przestrzeń. Takie schody często mają geometryczne kształty i proste linie, co idealnie wpisuje się w współczesne trendy architektoniczne.
Z drugiej strony, schody klasyczne często mają bogate detale i są wykonane z drewna. Charakteryzują się one ozdobnymi balustradami oraz eleganckimi spocznikami. Klasyczne schody mogą być zarówno proste, jak i zabiegowe, a ich design często nawiązuje do tradycyjnych stylów architektonicznych. W takich projektach ważne jest, aby uwzględnić detale, które podkreślają ich wyjątkowy charakter, takie jak rzeźbienia czy zdobienia.
Innowacyjne materiały i technologie w projektowaniu schodów
W dzisiejszych czasach, nowoczesne materiały oraz technologie mają ogromny wpływ na projektowanie schodów. Coraz częściej architekci i projektanci sięgają po kompozyty i materiały ekologiczne, które nie tylko są estetyczne, ale również przyjazne dla środowiska. Na przykład, schody wykonane z materiałów kompozytowych mogą być lżejsze, bardziej odporne na uszkodzenia oraz łatwiejsze w utrzymaniu niż tradycyjne drewno czy beton. Dodatkowo, zastosowanie technologii druku 3D w produkcji schodów otwiera nowe możliwości w zakresie personalizacji i unikalnych kształtów, które mogą dostosować się do indywidualnych potrzeb użytkowników.Warto również zwrócić uwagę na inteligentne systemy integrujące schody z nowoczesnymi technologiami domowymi. Systemy oświetlenia LED, które automatycznie dostosowują jasność w zależności od pory dnia, mogą zwiększyć bezpieczeństwo oraz komfort użytkowania schodów. Dodatkowo, zdalne sterowanie oświetleniem i innymi funkcjami za pomocą smartfona lub asystenta głosowego staje się coraz bardziej popularne. Te innowacje nie tylko podnoszą estetykę, ale także funkcjonalność schodów, czyniąc je integralną częścią nowoczesnego, inteligentnego domu.






